恩平市政府门户网站
无障碍浏览
长者版
恩平市自然资源局
智能搜索
单位首页
组织机构
政务公开
政府信息公开指南
政府信息公开平台
政府信息公开工作年度报告
政府信息依申请公开
重点领域信息公开
网上办事
互动交流
不动产登记专栏
公告公示
办事指南
数据公开
尽职调查
答问知识库
投诉建议
规划公示
当前位置:
首页
>
工作机构
>
恩平市自然资源局
>
规划公示
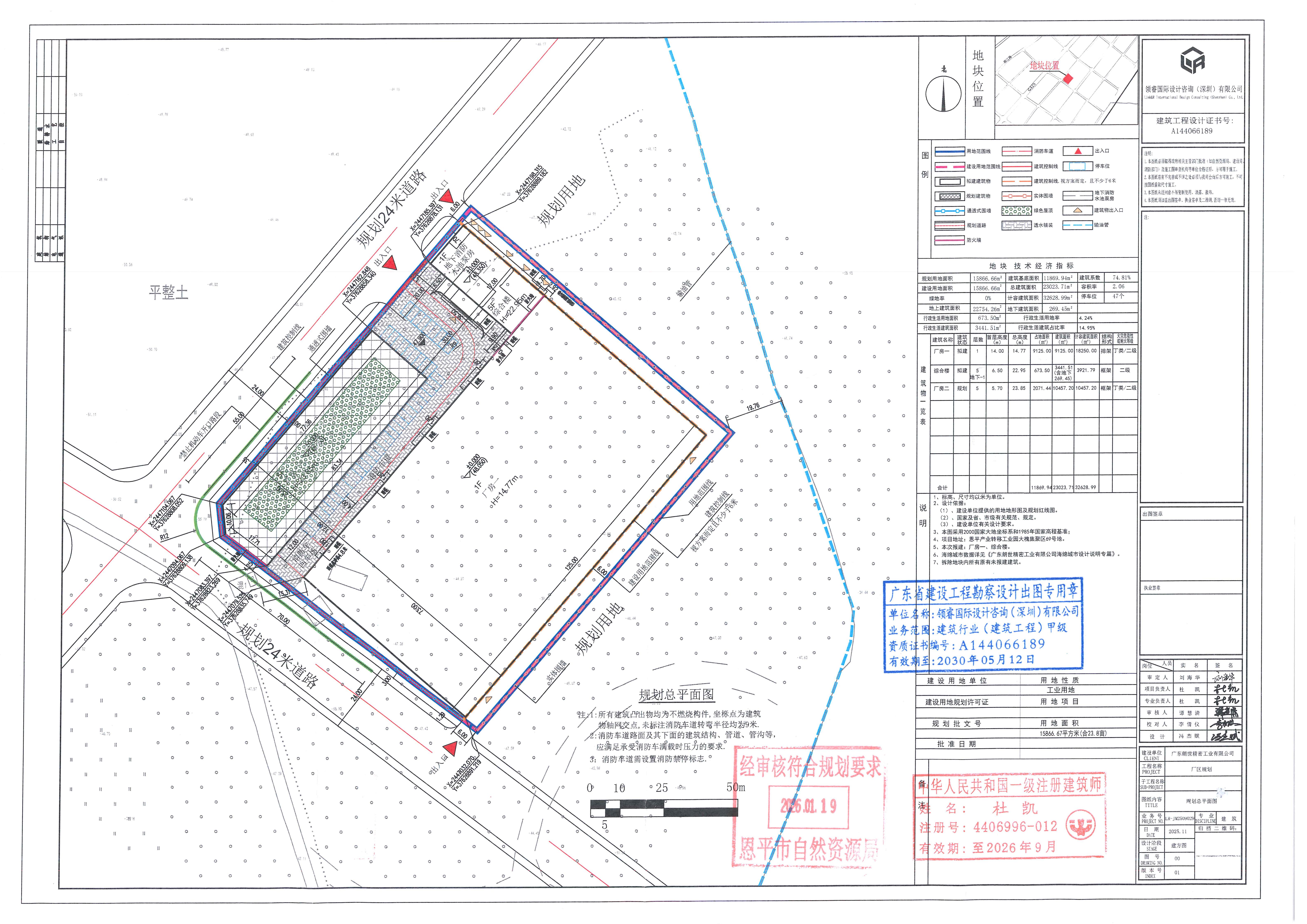
【批后公告】恩规公[2025]360号 广东朗世精密工业有限公司
发布日期:2026-02-25
来源:本网
作者:
【字体:
大
中
小
】
恩平政务
微信公众号
恩平政务
官方微博
版权所有:恩平市人民政府 主办:恩平市人民政府办公室
站点地图
联系方式
网站标识码:4407850057
ICP备案号:粤ICP备05085446号
粤公网安备 44078502000006号